Quadrilocale in vendita

Mantova, Viale Marche - Lunetta
€ 96.000
4 locali 4 locali
124 Mq 124 Mq
2 bagni 2 bagni

Quadrilocale in vendita

Mantova, Viale Marche - Lunetta

Descrizione annuncio

MANTOVA

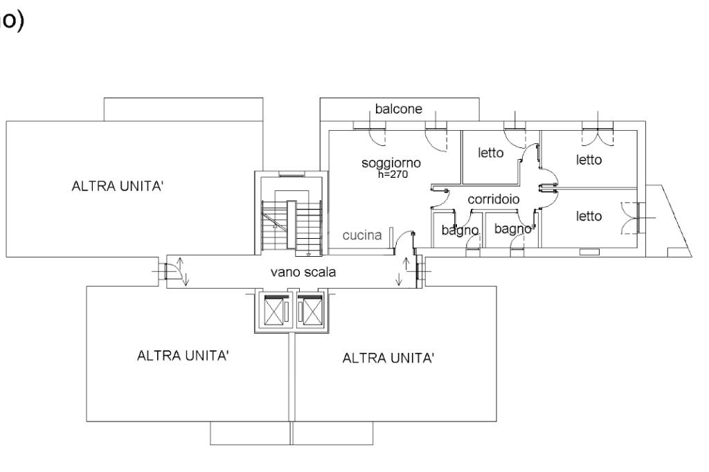
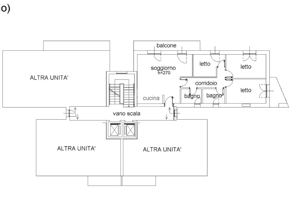
In zona Lunetta, alle porte della città e comodo a tutti i servizi, proponiamo in vendita appartamento quadrilocale posto al quarto piano servito di ascensore.

L'immobile è composto da soggiorno con angolo cottura, servito di balcone, corridoio che porta alla zona notte dove sono presenti 3 CAMERE DA LETTO: due camere matrimoniali, di cui una con balcone e una camera 3/4. DOPPI SERVIZI: bagno/lavanderia con doccia e un altro bagno con vasca.

Si segnala che nell'appartamento è presente il riscaldamento (autonomo) a pavimento ed è climatizzato sia in zona giorno che in zona notte.

Completano l'immobile il posto auto coperto e la cantina di proprietà.

L'appartamento viene venduto NON ARREDATO!

Riferimento immobile: 61152862

Per ricevere informazioni e per visionare questa soluzione,
Contattaci ai nostri recapiti telefonici:

0376 446464 – 328 6962988

Per ulteriori soluzioni puoi visitare il nostro sito sangiorgiobigarello1

SEGUICI ANCHE SUI NOSTRI CANALI:
Facebook
Tecnorete San Giorgio Bigarello

Instagram tecnoretesangiorgiobigarello

Servizi per chi vende:

- VALUTAZIONE GRATUITA dell'immobile

- Analisi di provenienza

- Visure ipotecarie

- Visura catastale

- Pubblicità dell'immobile

- Rapidità nei tempi di vendita

- Incarico a procurare la vendita.

Servizi per chi acquista:

- Visura ipo-catastale

- Controllo documentale dell'immobile

Vuoi affittare il tuo immobile? Offriamo servizi esclusivi per tutelare il proprietario.

Veniteci a trovare in agenzia, siamo a San Giorgio Bigarello in Piazza San Giorgio, 20 ed il nostro personale vi aiuterà a trovare l'immobile giusto per le vostre esigenze.

Ogni agenzia ha un proprio titolare ed è autonoma.

Le presenti informazioni e planimetrie sono indicative e non costituiscono elementi contrattuali.

Per motivi di privacy l'indirizzo e numero civico non corrispondono alla reale ubicazione dell'immobile ma si trova nelle immediate vicinanze.

Mostra tutto

Nelle vicinanze

Trasporto pubblico Trasporto pubblico
Mantova Frassine
Mantova Frassine
1,5 Km
Trasporto pubblico
100 m
Mantova, Strada Cipata
Mantova, Strada Cipata
770 m
Ricariche auto elettriche Ricariche auto elettriche
Evway Mantova Parcheggio Sparafucile
820 m
evway Parcheggio Arche
1,8 Km
Evway Burger King Mantova
2,3 Km
Old Wild West Mantova
2,3 Km
Autostrada del Brennero Casello Mantova Nord
2,4 Km
Scuole Scuole
Università degli Studi di Brescia, Polo di Mantova
320 m
Scuola primaria "Rita Levi-Montalcinci"
1,7 Km
Scuola Materna Collodi
1,7 Km
Scuola secondaria di primo grado "Don Lorenzo Milani"
1,9 Km
Liceo Classico Virgilio
2,0 Km
Farmacia Farmacia
Farmacia Mantova Alla Lunetta
170 m
Farmacia Comunale San Giorgio
1,6 Km
Dott. Emilio Guidotti
1,6 Km
Farmacia San Giorgio
2,1 Km
Farmacia Cooperativa Mantovana
2,3 Km
Ospedali Ospedali
Poliambulatori - Asst Mantova
2,5 Km
Supermercati Supermercati
Conad
30 m
Aldi
610 m
Bricocenter
620 m
Ipercoop La Favorita
760 m
LD
1,9 Km
Negozi Negozi
HaoMai superstore
490 m
Malaggi
1,5 Km
Randon
1,6 Km
Vivo
1,8 Km
Prenatal
1,8 Km
Bar Bar
Bar
350 m
Cofee Mello
500 m
ENI Caffè
720 m
78
770 m
Pit Lane
1,4 Km
Ristoranti Ristoranti
Roadhouse Grill
450 m
Il Rigoletto
540 m
Sushi One
700 m
Valente
1,3 Km
Le 12 Colonne
1,4 Km
Mostra tutto

Caratteristiche

Rif.:
61152862
Piano:
4 di 7 con ascensore (Piano medio)
Box:
1
Posti auto:
1
Balconi:
2
Camere da letto:
3
Mostra tutto
Prezzo Prezzo
€ 96.000
Rata mutuo Rata mutuo
€ 453 / mese
Spese annue Spese annue
€ 900
Proponi il tuo prezzoProponi il tuo prezzo

Classe Energetica

D
D
D
D
D
D
D
D
D
EP globale non rinnovabile:
98.55 kW h/m² anno
EP globale rinnovabile:
98.55 kW h/m² anno
EP invernale del fabbricato:
EP estiva del fabbricato:
Anno di costruzione:
2007
Riscaldamento:
Autonomo
Tipo impianto:
A pavimento
Tipo alimentazione:
Metano

Ti interessa visionare l'immobile?

Fissa un appuntamento  Fissa un appuntamento

Richiedi informazioni

Clicca su Leggi per aprire l'informativa
* Questi campi sono obbligatori

Calcola il tuo mutuo

Semplice e senza impegno
Anticipo

( % )
Mutuo

( % )

pochi semplici passi

inserisci i tuoi dati
Questionario completato
Grazie per aver richiesto un appuntamento senza impegno con un nostro Consulente del Credito e Assicurativo.

Hai inserito correttamente tutti i dati necessari e a breve riceverai una e-mail con un link da convalidare per inviare i tuoi dati.
Affiliato
Tecno San Giorgio Srl
P.zza San Giorgio, 20 46051 San Giorgio Bigarello (MN)

Il nostro staff


  • Oscar Zini
    Affiliato

  • Eleonora Bernardi
    Collaboratrice

  • Giulia Converso
    Collaboratrice

  • Denis Daeder
    Collaboratore

  • Vlad Cristian Adam
    Affiliato

  • Giorgia Negri
    Coordinatrice
P.zza San Giorgio, 20 46051 San Giorgio Bigarello (MN)
Zona: San Giorgio Bigarello-Castelbelforte-Castel D'ario-Cittadella-Colle Aperto-Frassino-Lunetta
Mostra su mappa
Orari: Dal lunedì al venerdì dalle 08:30 alle 12:30 e dalle 14:30 alle 19:00 Sabato dalle 08:30 alle 12:30 Domenica chiuso
Affiliato
Tecno San Giorgio Srl
P.zza San Giorgio, 20 46051 San Giorgio Bigarello (MN)

2025 Tecnocasa Franchising S.p.A. - P. IVA 08365160152 - Via Monte Bianco 60/A 20089 Rozzano (MI). Ogni agenzia ha un proprio titolare ed è autonoma. Privacy policy | Policy utilizzo | Cookie policy