Casa indipendente in vendita

San Giorgio Bigarello, Via Giacomo Matteotti - Mottella
€ 74.000
2 locali 2 locali
60 Mq 60 Mq
1 bagno 1 bagno

Casa indipendente in vendita

San Giorgio Bigarello, Via Giacomo Matteotti - Mottella

Descrizione annuncio

SAN GIORGIO BIGARELLO

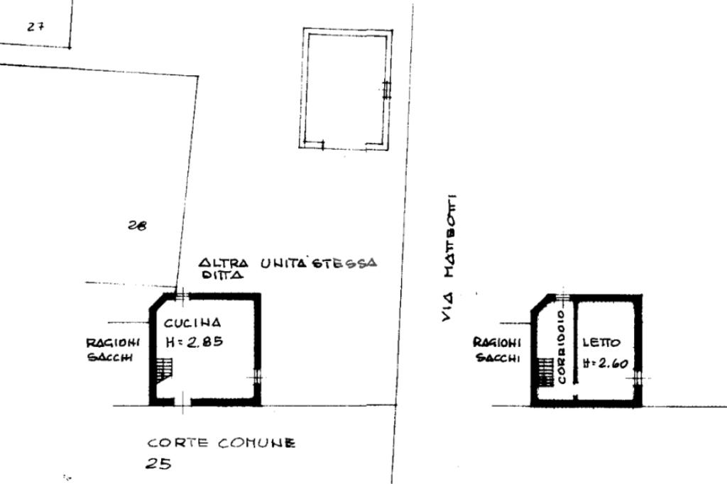
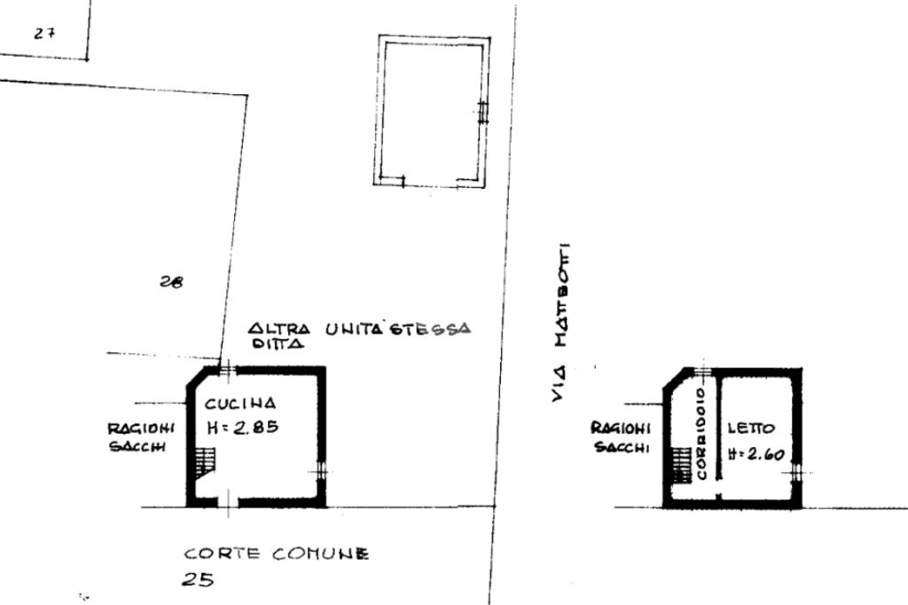
A Mottella, proponiamo in vendita casetta mantovana terracielo su due livelli composta da, appartamento bilocale e cantina.

Al piano rialzato troviamo la zona giorno, mentre, al primo piano troviamo camera da letto e bagno.

L'immobile presenta poi la cantina di pertinenza.

Si segnala che l'immobile è stato ristrutturato circa 20 anni fa ed è locato ad euro 3.600/00 annui, quindi viene venduto a titolo investimento!

Riferimento immobile:61143127

Per ricevere informazioni e per visionare questa soluzione,
Contattaci ai nostri recapiti telefonici:

0376 446464 – 328 6962988

Per ulteriori soluzioni puoi visitare il nostro sito sangiorgiobigarello1

SEGUICI ANCHE SUI NOSTRI CANALI:
Facebook
Tecnorete San Giorgio Bigarello

Instagram tecnoretesangiorgiobigarello

Servizi per chi vende:

- VALUTAZIONE GRATUITA dell'immobile

- Analisi di provenienza

- Visure ipotecarie

- Visura catastale

- Pubblicità dell'immobile

- Rapidità nei tempi di vendita

- Incarico a procurare la vendita.

Servizi per chi acquista:

- Visura ipo-catastale

- Controllo documentale dell'immobile

Vuoi affittare il tuo immobile? Offriamo servizi esclusivi per tutelare il proprietario.

Veniteci a trovare in agenzia, siamo a San Giorgio Bigarello in Piazza San Giorgio, 20 ed il nostro personale vi aiuterà a trovare l'immobile giusto per le vostre esigenze.

Ogni agenzia ha un proprio titolare ed è autonoma.

Le presenti informazioni e planimetrie sono indicative e non costituiscono elementi contrattuali.

Per motivi di privacy l'indirizzo e numero civico non corrispondono alla reale ubicazione dell'immobile ma si trova nelle immediate vicinanze.

Mostra tutto

Nelle vicinanze

Trasporto pubblico Trasporto pubblico
Mantova Frassine
Mantova Frassine
2,0 Km
Piazza Municipio (Mottella)
Piazza Municipio (Mottella)
70 m
Via Nenni - Piazza della Repubblica (Mottella)
Via Nenni - Piazza della Repubblica (Mottella)
180 m
Ricariche auto elettriche Ricariche auto elettriche
Evway Burger King Mantova
420 m
Old Wild West Mantova
470 m
Autostrada del Brennero Casello Mantova Nord
530 m
Evway Mantova Parcheggio Sparafucile
2,7 Km
Scuole Scuole
Scuola Materna Collodi
610 m
Scuola primaria "Rita Levi-Montalcinci"
1,2 Km
Scuola secondaria di primo grado "Don Lorenzo Milani"
1,2 Km
Università degli Studi di Brescia, Polo di Mantova
2,0 Km
Farmacia Farmacia
Farmacia Comunale San Giorgio
400 m
Dott. Emilio Guidotti
1,0 Km
Farmacia Mantova Alla Lunetta
2,0 Km
Supermercati Supermercati
LD
480 m
Martinelli
670 m
Aldi
1,3 Km
Ipercoop La Favorita
1,9 Km
Bricocenter
1,9 Km
Negozi Negozi
Vivo
220 m
Randon
430 m
Malaggi
440 m
Prenatal
470 m
UNIGROS
470 m
Bar Bar
Bar
300 m
Icon
1,1 Km
78
2,1 Km
Pit Lane
2,1 Km
Bar La Stella
2,2 Km
Ristoranti Ristoranti
Pizza Shop
100 m
Old Wild West
470 m
Pizzeria Giotto
1,1 Km
Valente
1,6 Km
Sushi One
1,6 Km
Mostra tutto

Caratteristiche

Rif.:
61143127
Piano:
Su più livelli di 2
Totale piani:
2
Camere da letto:
1
Arredamento:
Completo
Condizionamento:
Autonomo
Mostra tutto
Prezzo Prezzo
€ 74.000
Rata mutuo Rata mutuo
€ 352 / mese
Spese annue Spese annue
€ 0
Proponi il tuo prezzoProponi il tuo prezzo

Classe Energetica

G
G
G
G
G
G
G
G
G
EP globale non rinnovabile:
162.20 kW h/m² anno
EP globale rinnovabile:
162.20 kW h/m² anno
EP estiva del fabbricato:
Anno di costruzione:
1980
Riscaldamento:
Autonomo
Tipo impianto:
A radiatori
Tipo alimentazione:
Metano

Ti interessa visionare l'immobile?

Fissa un appuntamento  Fissa un appuntamento

Richiedi informazioni

Clicca su Leggi per aprire l'informativa
* Questi campi sono obbligatori

Calcola il tuo mutuo

Semplice e senza impegno
Anticipo

( % )
Mutuo

( % )

pochi semplici passi

inserisci i tuoi dati
Questionario completato
Grazie per aver richiesto un appuntamento senza impegno con un nostro Consulente del Credito e Assicurativo.

Hai inserito correttamente tutti i dati necessari e a breve riceverai una e-mail con un link da convalidare per inviare i tuoi dati.
Affiliato
Tecno San Giorgio Srl
P.zza San Giorgio, 20 46051 San Giorgio Bigarello (MN)

Il nostro staff


  • Oscar Zini
    Affiliato

  • Eleonora Bernardi
    Collaboratrice

  • Giulia Converso
    Collaboratrice

  • Denis Daeder
    Collaboratore

  • Vlad Cristian Adam
    Affiliato

  • Giorgia Negri
    Coordinatrice
P.zza San Giorgio, 20 46051 San Giorgio Bigarello (MN)
Zona: San Giorgio Bigarello-Castelbelforte-Castel D'ario-Cittadella-Colle Aperto-Frassino-Lunetta
Mostra su mappa
Orari: Dal lunedì al venerdì dalle 08:30 alle 12:30 e dalle 14:30 alle 19:00 Sabato dalle 08:30 alle 12:30 Domenica chiuso
Affiliato
Tecno San Giorgio Srl
P.zza San Giorgio, 20 46051 San Giorgio Bigarello (MN)

2026 Tecnocasa Franchising S.p.A. - P. IVA 08365160152 - Via Monte Bianco 60/A 20089 Rozzano (MI). Ogni agenzia ha un proprio titolare ed è autonoma. Privacy policy | Policy utilizzo | Cookie policy