Porzione di bifamiliare in vendita

San Giorgio Bigarello, Piazza San Giorgio - Mottella
€ 280.000
208 Mq 208 Mq
2 bagni 2 bagni

Porzione di bifamiliare in vendita

San Giorgio Bigarello, Piazza San Giorgio - Mottella

Descrizione annuncio

SAN GIORGIO BIGARELLO
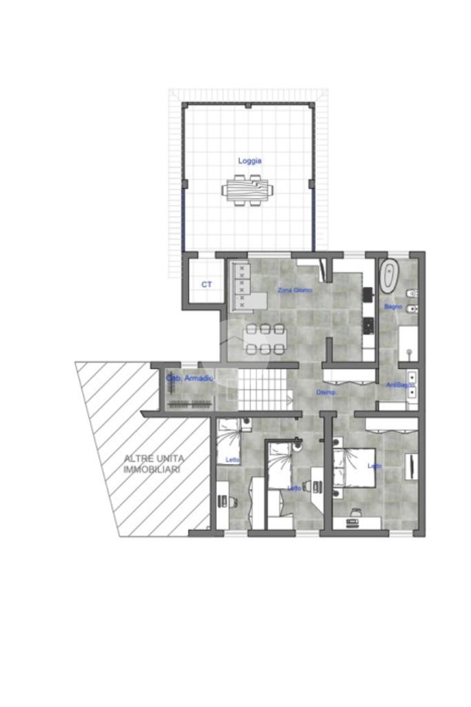
In Località Mottella, in zona residenziale comoda a tutti i servizi proponiamo in vendita porzione di bifamiliare, attualmente al grezzo ma che verrà consegnata completamente ristrutturata.

L’immobile è composto da:
- giardino privato ad uso esclusivo di 150 mq
- garage doppio di 36 mq
- abitazione di 125 mq calpestabili
- ampia terrazza di 38 mq
- l’appartamento viene consegnato ristrutturato in Classe Energetica A1

La soluzione è composta a piano terra da garage doppio, ingresso e bagno-lavanderia; al
piano primo troviamo cabina armadio, zona giorno in open space, ampia terrazza di 38mq, centrale termica, bagno, 2 camere singole, 1 camera matrimoniale.

Il prezzo è complessivo di:
- casa finita chiavi in mano in Classe Energetica a1
- riscaldamento a pavimento
- caldaia nuova
- sanitari e rubinetteria ideal standard
- vasca freestanding
- rivestimenti bagni in grande formato
- pavimenti in grande formato
- serramenti nuovi in pvc
- porte filo muro
- scala con rivestimento in lamiera cerata con corrimano con led integrato
- cappotto esterno
- pavimentazioni esterne
- cancello in ferro a doghe motorizzato
- basculanti garage motorizzate
- predisposizione per impianto fotovoltaico

Casa pronta in 5 mesi.

Mostra tutto

Nelle vicinanze

Trasporto pubblico Trasporto pubblico
Mantova Frassine
Mantova Frassine
1,9 Km
Via Gandhi (Mottella)
Via Gandhi (Mottella)
70 m
Via Nenni - Piazza della Repubblica (Mottella)
Via Nenni - Piazza della Repubblica (Mottella)
170 m
Ricariche auto elettriche Ricariche auto elettriche
Evway Burger King Mantova
440 m
Old Wild West Mantova
520 m
Autostrada del Brennero Casello Mantova Nord
530 m
Evway Mantova Parcheggio Sparafucile
2,8 Km
Scuole Scuole
Scuola Materna Collodi
750 m
Scuola primaria "Rita Levi-Montalcinci"
1,4 Km
Scuola secondaria di primo grado "Don Lorenzo Milani"
1,4 Km
Università degli Studi di Brescia, Polo di Mantova
2,0 Km
Farmacia Farmacia
Farmacia Comunale San Giorgio
500 m
Dott. Emilio Guidotti
1,2 Km
Farmacia Mantova Alla Lunetta
2,0 Km
Supermercati Supermercati
LD
620 m
Martinelli
700 m
Aldi
1,4 Km
Ipercoop La Favorita
2,0 Km
Conad
2,0 Km
Negozi Negozi
Vivo
350 m
Malaggi
550 m
Randon
550 m
Prenatal
610 m
UNIGROS
610 m
Bar Bar
Bar
250 m
Icon
1,0 Km
Pit Lane
2,0 Km
78
2,1 Km
Bar La Stella
2,4 Km
Ristoranti Ristoranti
Pizza Shop
230 m
Old Wild West
510 m
Pizzeria Giotto
1,2 Km
Valente
1,5 Km
Sushi One
1,7 Km
Mostra tutto

Caratteristiche

Rif.:
60904979
Piano:
Su più livelli di 1
Totale piani:
1
Box:
2
Posti auto:
1
Terrazzi:
1
Mostra tutto
Prezzo Prezzo
€ 280.000
Rata mutuo Rata mutuo
€ 1.322 / mese
Proponi il tuo prezzoProponi il tuo prezzo

Classe Energetica

A1
A1
A1
A1
A1
A1
A1
A1
A1
EP globale non rinnovabile:
65.00 kW h/m² anno
EP globale rinnovabile:
65.00 kW h/m² anno
EP invernale del fabbricato:
EP estiva del fabbricato:
Anno di costruzione:
2004
Riscaldamento:
Autonomo
Tipo impianto:
A pavimento
Tipo alimentazione:
Metano

Ti interessa visionare l'immobile?

Fissa un appuntamento  Fissa un appuntamento

Richiedi informazioni

Clicca su Leggi per aprire l'informativa
* Questi campi sono obbligatori

Calcola il tuo mutuo

Semplice e senza impegno
Anticipo

( % )
Mutuo

( % )

pochi semplici passi

inserisci i tuoi dati
Questionario completato
Grazie per aver richiesto un appuntamento senza impegno con un nostro Consulente del Credito e Assicurativo.

Hai inserito correttamente tutti i dati necessari e a breve riceverai una e-mail con un link da convalidare per inviare i tuoi dati.
Affiliato
Tecno San Giorgio Srl
P.zza San Giorgio, 20 46051 San Giorgio Bigarello (MN)

Il nostro staff


  • Oscar Zini
    Affiliato

  • Eleonora Bernardi
    Collaboratrice

  • Giulia Converso
    Collaboratrice

  • Denis Daeder
    Collaboratore

  • Vlad Cristian Adam
    Affiliato

  • Giorgia Negri
    Coordinatrice
P.zza San Giorgio, 20 46051 San Giorgio Bigarello (MN)
Zona: San Giorgio Bigarello-Castelbelforte-Castel D'ario-Cittadella-Colle Aperto-Frassino-Lunetta
Mostra su mappa
Orari: Dal lunedì al venerdì dalle 08:30 alle 12:30 e dalle 14:30 alle 19:00 Sabato dalle 08:30 alle 12:30 Domenica chiuso
Affiliato
Tecno San Giorgio Srl
P.zza San Giorgio, 20 46051 San Giorgio Bigarello (MN)

2025 Tecnocasa Franchising S.p.A. - P. IVA 08365160152 - Via Monte Bianco 60/A 20089 Rozzano (MI). Ogni agenzia ha un proprio titolare ed è autonoma. Privacy policy | Policy utilizzo | Cookie policy