Villa singola in vendita

San Giorgio Bigarello, Via Marche - Tripoli
€ 425.000
8 locali 8 locali
315 Mq 315 Mq
3 bagni 3 bagni

Villa singola in vendita

San Giorgio Bigarello, Via Marche - Tripoli

Descrizione annuncio

SAN GIORGIO BIGARELLO

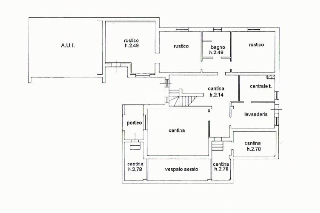
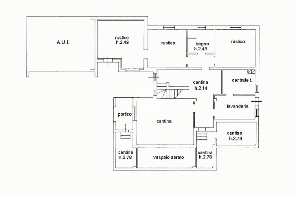
Realizzata nei primi anni '90, questa signorile VILLA SINGOLA è posta su un lotto di circa 1300 mq, con un garage di 38 mq e ampissimi spazi interni con finiture di pregio.

L'immobile si compone di ingresso al piano rialzato con grande e luminoso porticato di ben 50 mq.
L'ingresso è direttamente nell'ampio e luminoso soggiorno dotato di finiture di pregio, cucina abitabile con grande dispensa e bagno di servizio.

Tramite il corridodio si accede alle due camere da letto matrimoniali ed al secondo bagno.

Tramite la scala interna si accede al piano terra dove sono presenti vari ambienti come una grandissima taverna, un cucinotto, un'ampia lavanderia, un terzo bagno e altre stanze varie utilizzabili come palestra o studio professionale con ingresso autonomo per chi dovesse ricevere clienti dall'esterno senza passare dall'abitazione.

A completare l'abitazione vi è il box auto di ben 38 mq con doppia basculante ed una grande soffitta.

Si segnala che l'immobile è dotato di intercapedine interna, infissi di pregio con vetrocamera e che è in classe energetica C.

POSIZIONE E CONTESTO

Questa villa è collocata a margine del centro abitato del paese, a pochi passi da asilo, supermercato, centro sportivo, fermata autobus e comodo ai principali servizi del paese.

Riferimento immobile: 61104126

Per ricevere informazioni e per visionare questa soluzione,
Contattaci ai nostri recapiti telefonici:

0376 446464 – 328 6962988

Per ulteriori soluzioni puoi visitare il nostro sito sangiorgiobigarello1

SEGUICI ANCHE SUI NOSTRI CANALI:
Facebook
Tecnorete San Giorgio Bigarello

Instagram tecnoretesangiorgiobigarello

Servizi per chi vende:

- VALUTAZIONE GRATUITA dell'immobile

- Analisi di provenienza

- Visure ipotecarie

- Visura catastale

- Pubblicità dell'immobile

- Rapidità nei tempi di vendita

- Incarico a procurare la vendita.

Servizi per chi acquista:

- Visura ipo-catastale

- Controllo documentale dell'immobile

Vuoi affittare il tuo immobile? Offriamo servizi esclusivi per tutelare il proprietario.

Veniteci a trovare in agenzia, siamo a San Giorgio Bigarello in Piazza San Giorgio, 20 ed il nostro personale vi aiuterà a trovare l'immobile giusto per le vostre esigenze.

Ogni agenzia ha un proprio titolare ed è autonoma.

Le presenti informazioni e planimetrie sono indicative e non costituiscono elementi contrattuali.

Per motivi di privacy l'indirizzo e numero civico non corrispondono alla reale ubicazione dell'immobile ma si trova nelle immediate vicinanze.

Mostra tutto

Nelle vicinanze

Trasporto pubblico Trasporto pubblico
Piazza Dante (Tripoli)
Piazza Dante (Tripoli)
440 m
Via Caselle - Piazza Silone (Tripoli)
Via Caselle - Piazza Silone (Tripoli)
480 m
Ricariche auto elettriche Ricariche auto elettriche
Old Wild West Mantova
1,4 Km
Evway Burger King Mantova
1,6 Km
Autostrada del Brennero Casello Mantova Nord
1,6 Km
Evway Mantova Parcheggio Sparafucile
2,9 Km
Scuole Scuole
Scuola secondaria di primo grado "Don Lorenzo Milani"
520 m
Scuola primaria "Rita Levi-Montalcinci"
700 m
Scuola Materna Collodi
1,0 Km
Università degli Studi di Brescia, Polo di Mantova
2,6 Km
Farmacia Farmacia
Dott. Emilio Guidotti
850 m
Farmacia Comunale San Giorgio
1,5 Km
Farmacia Mantova Alla Lunetta
2,5 Km
Supermercati Supermercati
LD
1,1 Km
Martinelli
1,5 Km
Ipercoop La Favorita
1,8 Km
Aldi
1,8 Km
Bricocenter
1,9 Km
Negozi Negozi
Bottega del Pane Artigianale
320 m
UNIGROS
1,1 Km
Prenatal
1,1 Km
Randon
1,4 Km
Malaggi
1,4 Km
Bar Bar
Bar La Stella
700 m
Bar
1,8 Km
Cofee Mello
2,6 Km
Icon
2,6 Km
Mascara
2,8 Km
Ristoranti Ristoranti
La locanda del Gusto
380 m
Pizzeria Giotto
490 m
80 Voglia ristorante pizzeria
530 m
Nuova osteria Tripoli
620 m
Old Wild West
1,5 Km
Mostra tutto

Caratteristiche

Rif.:
61104126
Piano:
Terra con giardino di 2
Totale piani:
2
Box:
1
Posti auto:
4
Terrazzi:
1
Mostra tutto
Prezzo Prezzo
€ 425.000
Rata mutuo Rata mutuo
€ 2.006 / mese
Proponi il tuo prezzoProponi il tuo prezzo
Immobile valutato con T·Valuta

Classe Energetica

C
C
C
C
C
C
C
C
C
EP globale non rinnovabile:
153.27 kW h/m² anno
EP globale rinnovabile:
153.27 kW h/m² anno
EP invernale del fabbricato:
EP estiva del fabbricato:
Anno di costruzione:
1980
Riscaldamento:
Autonomo
Tipo impianto:
A radiatori
Tipo alimentazione:
Metano

Ti interessa visionare l'immobile?

Fissa un appuntamento  Fissa un appuntamento

Richiedi informazioni

Clicca su Leggi per aprire l'informativa
* Questi campi sono obbligatori

Calcola il tuo mutuo

Semplice e senza impegno
Anticipo

( % )
Mutuo

( % )

pochi semplici passi

inserisci i tuoi dati
Questionario completato
Grazie per aver richiesto un appuntamento senza impegno con un nostro Consulente del Credito e Assicurativo.

Hai inserito correttamente tutti i dati necessari e a breve riceverai una e-mail con un link da convalidare per inviare i tuoi dati.
Affiliato
Tecno San Giorgio Srl
P.zza San Giorgio, 20 46051 San Giorgio Bigarello (MN)

Il nostro staff


  • Oscar Zini
    Affiliato

  • Eleonora Bernardi
    Collaboratrice

  • Giulia Converso
    Collaboratrice

  • Denis Daeder
    Collaboratore

  • Vlad Cristian Adam
    Affiliato

  • Giorgia Negri
    Coordinatrice
P.zza San Giorgio, 20 46051 San Giorgio Bigarello (MN)
Zona: San Giorgio Bigarello-Castelbelforte-Castel D'ario-Cittadella-Colle Aperto-Frassino-Lunetta
Mostra su mappa
Orari: Dal lunedì al venerdì dalle 08:30 alle 12:30 e dalle 14:30 alle 19:00 Sabato dalle 08:30 alle 12:30 Domenica chiuso
Affiliato
Tecno San Giorgio Srl
P.zza San Giorgio, 20 46051 San Giorgio Bigarello (MN)

2025 Tecnocasa Franchising S.p.A. - P. IVA 08365160152 - Via Monte Bianco 60/A 20089 Rozzano (MI). Ogni agenzia ha un proprio titolare ed è autonoma. Privacy policy | Policy utilizzo | Cookie policy