Villa singola in vendita

Villimpenta, Via Circonvallazione
€ 130.000
6 locali 6 locali
153 Mq 153 Mq
2 bagni 2 bagni

Villa singola in vendita

Villimpenta, Via Circonvallazione

Descrizione annuncio

VILLIMPENTA

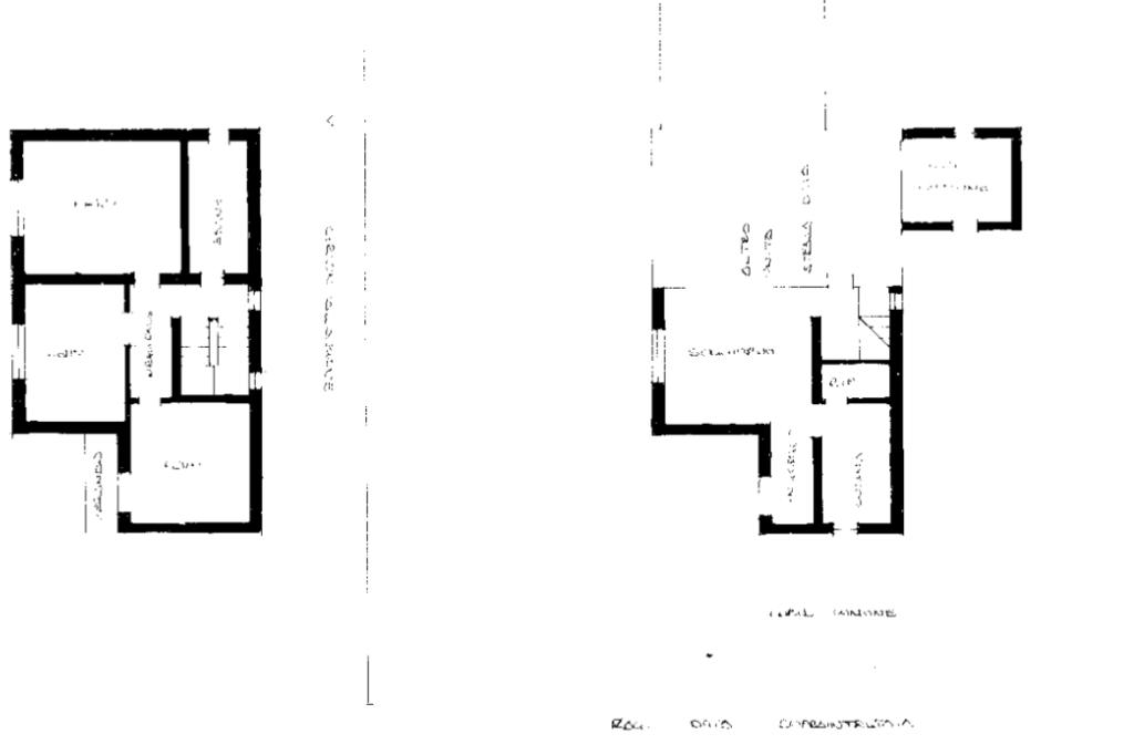
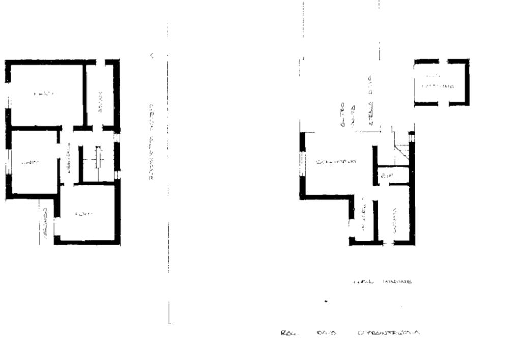
Proponiamo in vendita, villa singola disposta su due livelli con giardino, vigneto/seminativo e box esclusivi.

L'immobile si sviluppa su più livelli; al piano terra, ingresso nell’ampio soggiorno, cucina in angolo cottura separata, bagno con doccia e ulteriori due camere da adibire a taverna e/o secondo soggiorno. Al piano superiore, tre camere da letto matrimoniali e secondo bagno con vasca.

Completano la proprietà due box auto privati retrostanti all’abitazione, lavanderia, giardino, vigneto e semintavo esclusivi .

Costruita nel 1976, la casa è dotata di riscaldamento autonomo a radiatori e necessita di alcuni lavori di ristrutturazione.

Questa soluzione abitativa rappresenta un'opportunità per chi cerca una residenza accogliente e ben collegata, immersa nella tranquillità di Villimpenta.

Riferimento immobile: 61173725

Per ricevere informazioni e per visionare questa soluzione,
Contattaci ai nostri recapiti telefonici:

0376 446464 – 328 6962988

Per ulteriori soluzioni puoi visitare il nostro sito sangiorgiobigarello1

SEGUICI ANCHE SUI NOSTRI CANALI:
Facebook
Tecnorete San Giorgio Bigarello

Instagram tecnoretesangiorgiobigarello

Servizi per chi vende:

- VALUTAZIONE GRATUITA dell'immobile

- Recuperare atto di provenienza

- Visure ipotecarie

- Visura catastale

- Pubblicità dell'immobile

- Rapidità nei tempi di vendita

- Assistenza fino all’atto notarile

- Appuntamenti vendita con clienti qualificati

Servizi per chi acquista:

- Consulenza mutuo gratuita e senza impegno

- Controllo documentale dell'immobile

- Assistenza fino all’atto

Vuoi affittare il tuo immobile? Ampia banca dati con clienti referenziati.

Veniteci a trovare in agenzia, siamo a San Giorgio Bigarello in Piazza San Giorgio, 20 ed il nostro personale vi aiuterà a trovare l'immobile giusto per le vostre esigenze.

Per motivi di privacy l'indirizzo e numero civico spesso non corrispondono alla reale ubicazione dell'immobile.

Ogni agenzia ha un proprio titolare è autonoma - Le presenti informazioni non costituiscono elemento contrattuale e potrebbero, in buona fede, contenere errori o omissioni.

Mostra tutto

Nelle vicinanze

Scuole Scuole
Scuola dell'infanzia M. Ausiliatrice
480 m
Ospedali Ospedali
Ospedali
2,7 Km
Ristoranti Ristoranti
Rosa
410 m
Mostra tutto

Caratteristiche

Rif.:
61173725
Piano:
2 di 2 (Piano terra con giardino)
Box:
2
Posti auto:
2
Balconi:
1
Camere da letto:
3
Mostra tutto
Prezzo Prezzo
€ 130.000
Rata mutuo Rata mutuo
€ 618 / mese
Spese annue Spese annue
€ 0
Proponi il tuo prezzoProponi il tuo prezzo
Immobile valutato con T·Valuta

Classe Energetica

G
G
G
G
G
G
G
G
G
EP globale non rinnovabile:
359.18 kW h/m² anno
EP globale rinnovabile:
16.36 kW h/m² anno
EP invernale del fabbricato:
EP estiva del fabbricato:
Anno di costruzione:
1976
Riscaldamento:
Autonomo
Tipo impianto:
A radiatori
Tipo alimentazione:
Metano

Ti interessa visionare l'immobile?

Fissa un appuntamento  Fissa un appuntamento

Richiedi informazioni

Clicca su Leggi per aprire l'informativa
* Questi campi sono obbligatori

Calcola il tuo mutuo

Semplice e senza impegno
Anticipo

( % )
Mutuo

( % )

pochi semplici passi

inserisci i tuoi dati
Questionario completato
Grazie per aver richiesto un appuntamento senza impegno con un nostro Consulente del Credito e Assicurativo.

Hai inserito correttamente tutti i dati necessari e a breve riceverai una e-mail con un link da convalidare per inviare i tuoi dati.
Affiliato
Tecno San Giorgio Srl
P.zza San Giorgio, 20 46051 San Giorgio Bigarello (MN)

Il nostro staff


  • Oscar Zini
    Affiliato

  • Eleonora Bernardi
    Collaboratrice

  • Giulia Converso
    Collaboratrice

  • Denis Daeder
    Collaboratore

  • Vlad Cristian Adam
    Affiliato

  • Giorgia Negri
    Coordinatrice
P.zza San Giorgio, 20 46051 San Giorgio Bigarello (MN)
Zona: San Giorgio Bigarello-Castelbelforte-Castel D'ario-Cittadella-Colle Aperto-Frassino-Lunetta
Mostra su mappa
Orari: Dal lunedì al venerdì dalle 08:30 alle 12:30 e dalle 14:30 alle 19:00 Sabato dalle 08:30 alle 12:30 Domenica chiuso
Affiliato
Tecno San Giorgio Srl
P.zza San Giorgio, 20 46051 San Giorgio Bigarello (MN)

2026 Tecnocasa Franchising S.p.A. - P. IVA 08365160152 - Via Monte Bianco 60/A 20089 Rozzano (MI). Ogni agenzia ha un proprio titolare ed è autonoma. Privacy policy | Policy utilizzo | Cookie policy